Bienvenido a mi portafolio de proyectos
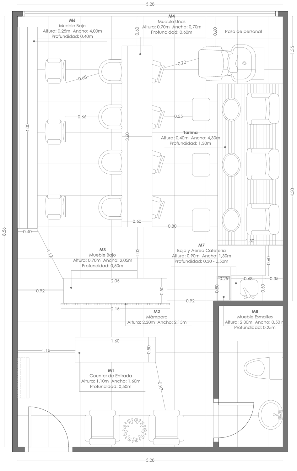
Societé Beauty Saloon
Guayaquil, Ecuador
ACERCA DEL PROYECTO
Desarrollo de propuesta de interior comercial, para salón de belleza y uñas.Como elemento principal se utilizan materiales que simulan la madera: gres porcelánico maderado, aglomerados con acabado de madera, combinados con el color azul de la marca...

Antes
IMÁGENES DEL PROYECTO


Video Tour
Imágen panorámica 360












