Bienvenido a mi portafolio de proyectos
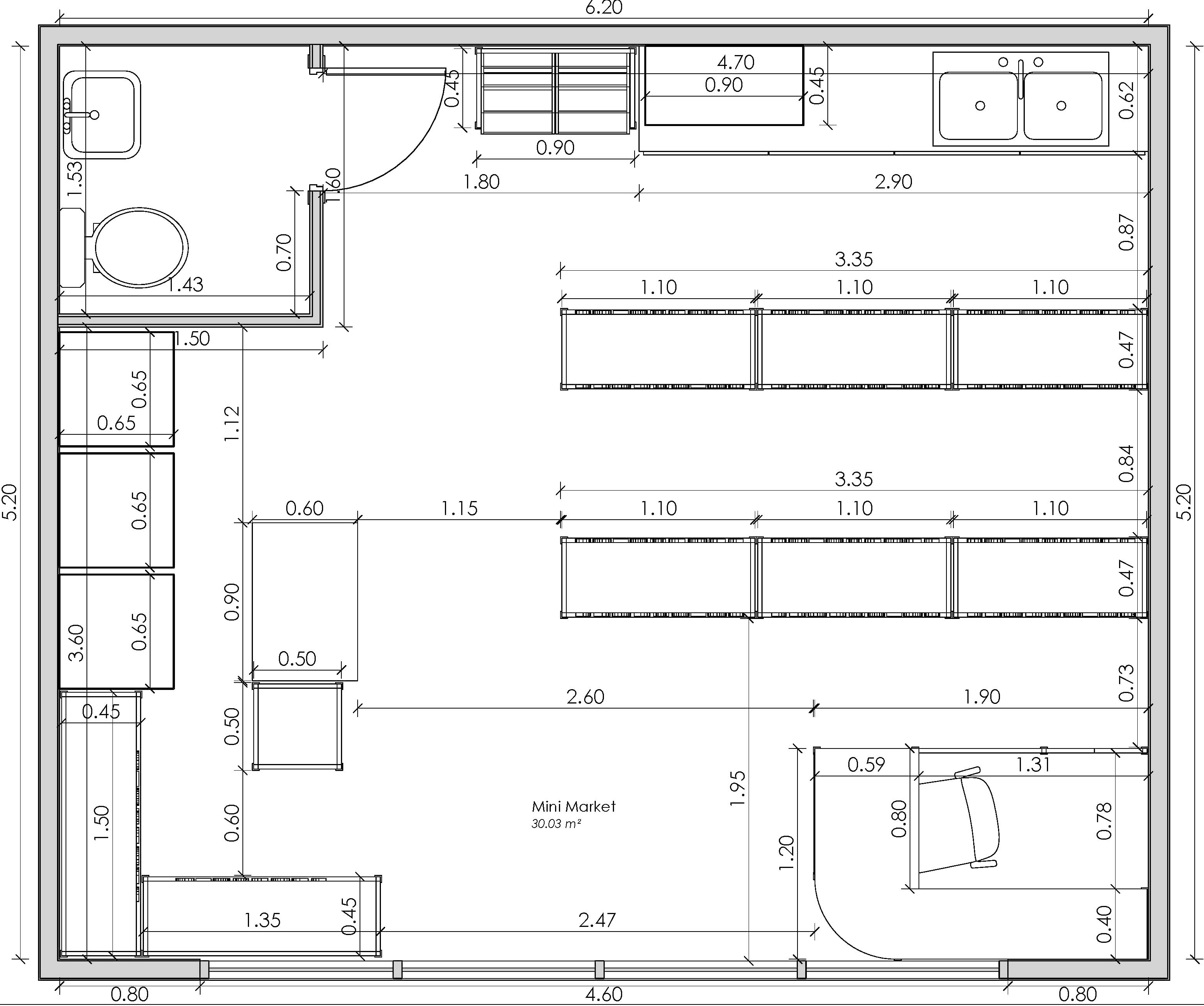
Diseño arquitectónico e interiorismo para MINIMARKET
Guayaquil, Ecuador
ACERCA DEL PROYECTO
Propuesta arquitectónica e interiorismo para reformar un local comercial y transformarlo en un minimarket.
Con un estilo rústico y al mismo tiempo contemporáneo nace este diseño en base a tres materiales: madera, ladrillo y metal negro.

Estado previo














