Home
THE MIND BEHIND
Portafolio
Blog
Contáctame
Bienvenido a mi portafolio de proyectos
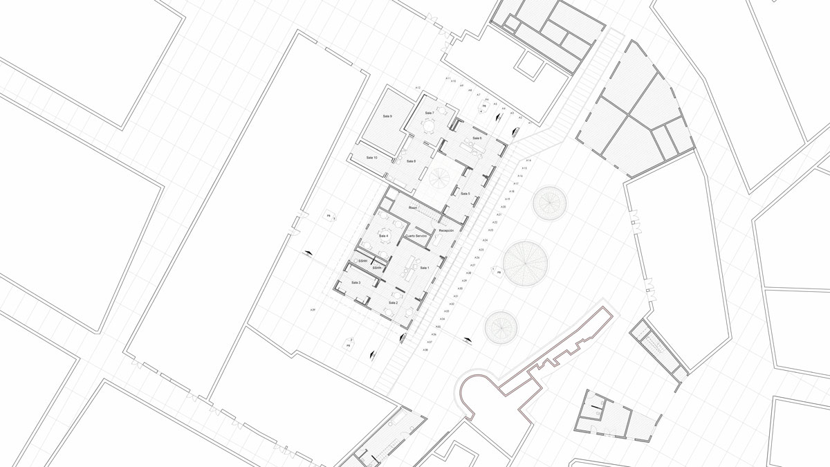
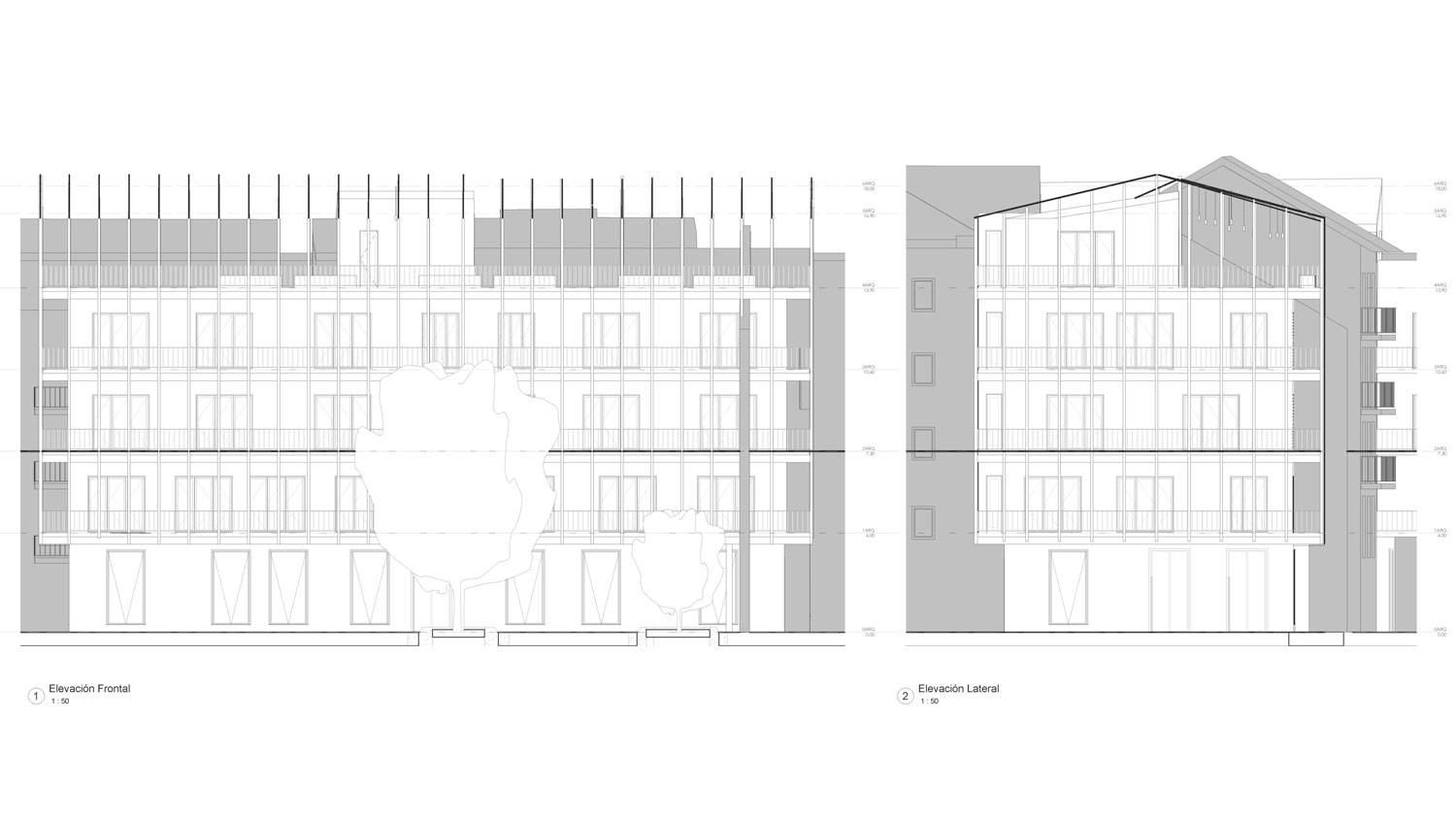
Bloque Residencial + Comercial
Valencia, España
ACERCA DEL PROYECTO
Bloque de viviendas consistente de cuatro plantas residenciales, más bajo comerciales. Distribuido en cuatro edificios ubicados en la misma parcela.
imágenes del proyecto
+
+
+
+
-->
¡Contáctame!
hola
[arroba]
gabrielacordova
[punto]
com
Ecuador - LATAM
¡Sígueme!
Menú
Inicio
The mind behind
Portafolio
Blog
Menu
Inicio
The mind behind
Portafolio
Blog
hola@gabrielacordova.com